

Provides daily necessities to the local area. Expect small supermarkets and restaurants nearby.
Development is encouraged. Infrastructure like roads, water, and sewage is prioritized and well-maintained.
| Year | Price/Size | Total Units |
|---|---|---|
| 2025 | $1,299 Prices: $5,024 / $314 / $1,048 / $2,422 / $504 / $380 / $339 / $361 | 8 |
| 2023 | $801 Prices: $371 / $338 / $362 / $1,170 / $413 / $4,075 / $728 / $236 / $867 / $1,921 / $231 / $358 / $374 / $416 / $558 / $393 | 16 |
| 2022 | $785 Prices: $363 / $334 / $356 / $1,158 / $399 / $3,988 / $716 / $233 / $850 / $1,886 / $229 / $353 / $370 / $401 / $547 / $384 | 16 |
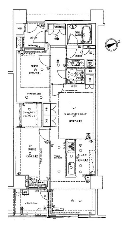
| Name | FBOXHOUSE |
|---|---|
| Building Name | FBOXHOUSE |
| Address | 東京都武蔵野市吉祥寺東町2丁目6-3 |
| Room number | 6F |
| Floor plan | LDK |
| Sun exposure | 北東 |
| Rent | $1,942 |
|---|---|
| Management fee | $125 |
| Common service fee | - |
| Deposit | 2 |
| Key money | 1 |
| Security deposit | - |
| Premium | - |
| Premium | - |
| 鍵交換代 | - |
| 初回保証委託料 | - |
| 年間保証委託料 | - |
| 契約期間 | 2 |
| Fixed lease | No |
|---|---|
| Lease term | null |
| Renewable | - |
| Renewal fee | 1 |
| Size | 102.49 |
|---|---|
| バルコニー面積 | - |
| 専用庭面積 | - |
| Transit | 吉祥寺 (12 Min Walk) |
|---|
| Year built | May 1990 |
|---|---|
| Floor | 6 Floor |
| Total floors | 6 Floor |
| Total basement floors | - |
| Structure | RC造 |
| Parking lot available | - |
|---|---|
| Parking monthly fee | - |
| Status | 空家 |
|---|---|
| 現況詳細 | 空家 |
| 引渡時期 | - |
