

Highly convenient. High-rises, department stores, and entertainment allowed. Can be busy and noisy at night.
Development is encouraged. Infrastructure like roads, water, and sewage is prioritized and well-maintained.
| Year | Price/Size | Total Units |
|---|---|---|
| 2025 | $1,241 Prices: $5,024 / $2,422 / $1,048 / $539 / $361 / $428 / $504 / $380 / $460 | 9 |
| 2023 | $815 Prices: $728 / $4,075 / $1,170 / $362 / $1,921 / $358 / $558 / $867 / $338 / $371 / $396 / $413 / $393 / $416 / $366 / $307 | 16 |
| 2022 | $799 Prices: $716 / $3,988 / $1,158 / $356 / $1,886 / $353 / $547 / $850 / $334 / $363 / $388 / $399 / $384 / $401 / $363 / $304 | 16 |
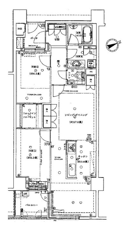
| Name | グローリオ吉祥寺本町 |
|---|---|
| Building Name | グローリオ吉祥寺本町 |
| Address | 東京都武蔵野市吉祥寺本町1丁目21-2 |
| Room number | 903 |
| Floor plan | LDK |
| Sun exposure | 東 |
| Rent | $2,099 |
|---|---|
| Management fee | $94 |
| Common service fee | - |
| Deposit | - |
| Key money | 1 |
| Security deposit | - |
| Premium | - |
| Premium | - |
| 鍵交換代 | - |
| 初回保証委託料 | - |
| 年間保証委託料 | - |
| 契約期間 | 2 |
| Fixed lease | No |
|---|---|
| Lease term | null |
| Renewable | - |
| Renewal fee | 1 |
| Size | 77.14 |
|---|---|
| バルコニー面積 | - |
| 専用庭面積 | - |
| Transit | 吉祥寺 (3 Min Walk) 吉祥寺 (3 Min Walk) 吉祥寺 (5 Min Walk) |
|---|
| Year built | November 2003 |
|---|---|
| Floor | 9 Floor |
| Total floors | 15 Floor |
| Total basement floors | 2 Floor |
| Structure | SRC造 |
| Parking lot available | - |
|---|---|
| Parking monthly fee | - |
| Status | 空家 |
|---|---|
| 現況詳細 | 空家 |
| 引渡時期 | - |
