

A general residential zone. Allows larger buildings and shops. Expect a mix of houses, apartments, and businesses.
Development is encouraged. Infrastructure like roads, water, and sewage is prioritized and well-maintained.
| Year | Price/Size | Total Units |
|---|---|---|
| 2025 | $498 Prices: $739 / $328 / $289 / $634 | 4 |
| 2023 | $413 Prices: $267 / $271 / $275 / $286 / $312 / $297 / $496 / $1,193 / $325 | 9 |
| 2022 | $407 Prices: $264 / $268 / $270 / $284 / $309 / $294 / $481 / $1,175 / $320 | 9 |
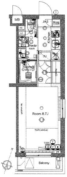
| Name | KANOA池上 |
|---|---|
| Building Name | KANOA池上 |
| Address | 東京都大田区池上5丁目20-1(予定) |
| Room number | 303 |
| Floor plan | LDK |
| Sun exposure | - |
| Rent | $983 |
|---|---|
| Management fee | $94 |
| Common service fee | - |
| Deposit | - |
| Key money | 1 |
| Security deposit | - |
| Premium | - |
| Premium | - |
| 鍵交換代 | - |
| 初回保証委託料 | - |
| 年間保証委託料 | - |
| 契約期間 | 2 |
| Fixed lease | No |
|---|---|
| Lease term | null |
| Renewable | - |
| Renewal fee | 1 |
| Size | 37.19 |
|---|---|
| バルコニー面積 | - |
| 専用庭面積 | - |
| Transit | 池上 (10 Min Walk) 蓮沼 (15 Min Walk) 蒲田 (16 Min Walk) |
|---|
| Year built | January 2026 |
|---|---|
| Floor | 3 Floor |
| Total floors | 4 Floor |
| Total basement floors | - |
| Structure | RC造 |
| Parking lot available | - |
|---|---|
| Parking monthly fee | - |
| Status | - |
|---|---|
| 現況詳細 | - |
| 引渡時期 | - |











Ikegami, Ota, Tokyo

Ikegami, Ota, Tokyo









Ikegami, Ota, Tokyo










Ikegami, Ota, Tokyo











Ikegami, Ota, Tokyo
