

Mainly for light industries and workshops. Living is allowed, but environment might be less refined.
Development is encouraged. Infrastructure like roads, water, and sewage is prioritized and well-maintained.
| Year | Price/Size | Total Units |
|---|---|---|
| 2025 | $555 Prices: $447 / $434 / $418 / $457 / $1,019 | 5 |
| 2023 | $460 Prices: $304 / $474 / $444 / $372 / $370 / $364 / $283 / $275 / $508 / $1,211 | 10 |
| 2022 | $454 Prices: $299 / $467 / $437 / $367 / $365 / $359 / $279 / $265 / $501 / $1,199 | 10 |
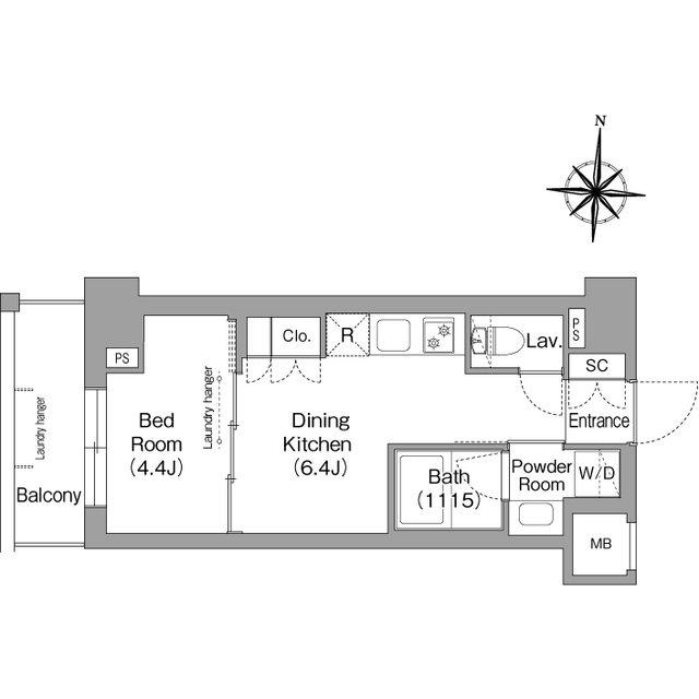
| Name | ウエリスアーバン住吉EAST |
|---|---|
| Building Name | ウエリスアーバン住吉EAST |
| Address | 東京都江東区猿江1丁目1-11 |
| Room number | 0902 |
| Floor plan | DK |
| Sun exposure | 西 |
| Rent | $952 |
|---|---|
| Management fee | - |
| Common service fee | $63 |
| Deposit | - |
| Key money | - |
| Security deposit | - |
| Premium | - |
| Premium | - |
| 鍵交換代 | - |
| 初回保証委託料 | - |
| 年間保証委託料 | - |
| 契約期間 | 2 |
| Fixed lease | No |
|---|---|
| Lease term | null |
| Renewable | - |
| Renewal fee | $952 |
| Size | 26.11 |
|---|---|
| バルコニー面積 | - |
| 専用庭面積 | - |
| Transit | 住吉 (8 Min Walk) 菊川 (10 Min Walk) |
|---|
| Year built | March 2026 |
|---|---|
| Floor | 9 Floor |
| Total floors | 10 Floor |
| Total basement floors | - |
| Structure | RC造 |
| Parking lot available | - |
|---|---|
| Parking monthly fee | - |
| Status | 未完成 |
|---|---|
| 現況詳細 | 未完成 |
| 引渡時期 | - |

Sarue, Koto, Tokyo

Sarue, Koto, Tokyo
