






Konan Shinagawaintashiteic-To(Chika, Minato, Tokyo




Konan Shinagawaintashiteic-To(Chika, Minato, Tokyo
Mainly for light industries and workshops. Living is allowed, but environment might be less refined.
Development is encouraged. Infrastructure like roads, water, and sewage is prioritized and well-maintained.
| Year | Price/Size | Total Units |
|---|---|---|
| 2025 | $2,011 Prices: $3,173 / $393 / $1,275 / $3,202 | 4 |
| 2023 | $3,105 Prices: $757 / $3,045 / $6,403 / $3,021 / $2,299 | 5 |
| 2022 | $3,111 Prices: $722 / $3,050 / $6,462 / $3,021 / $2,299 | 5 |
| Name | - |
|---|---|
| Building Name | セレーノ品川 |
| Address | 東京都港区港南3丁目7-3 |
| Room number | 504 |
| Floor plan | 1K |
| Sun exposure | - |
| Rent | $708 |
|---|---|
| Management fee | $94 |
| Common service fee | - |
| Deposit | 11 |
| Key money | 16 |
| Security deposit | - |
| Premium | - |
| Premium | - |
| 鍵交換代 | - |
| 初回保証委託料 | - |
| 年間保証委託料 | - |
| 契約期間 | - |
| Fixed lease | - |
|---|---|
| Lease term | - |
| Renewable | - |
| Renewal fee | - |
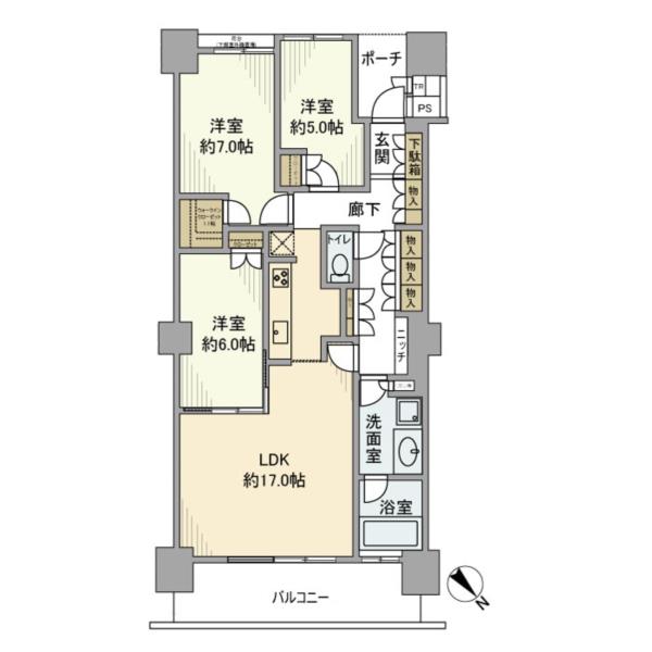
| Size | 24.48 |
|---|---|
| バルコニー面積 | - |
| 専用庭面積 | - |
| Transit | 品川 (14 Min Walk) 天王洲アイル (18 Min Walk) |
|---|
| Year built | June 2005 |
|---|---|
| Floor | 5 Floor |
| Total floors | 11 Floor |
| Total basement floors | - |
| Structure | RC |
| Parking lot available | - |
|---|---|
| Parking monthly fee | - |
| Status | 入居中 |
|---|---|
| 現況詳細 | 居住中 |
| 引渡時期 | 予定 2026年04月下旬 |





Konan Shinagawaintashiteic-To(Chika, Minato, Tokyo











Konan Shinagawaintashiteic-To(Chika, Minato, Tokyo
