

Highly convenient. High-rises, department stores, and entertainment allowed. Can be busy and noisy at night.
Development is encouraged. Infrastructure like roads, water, and sewage is prioritized and well-maintained.
| Year | Price/Size | Total Units |
|---|---|---|
| 2025 | $3,874 Prices: $832 / $1,112 / $4,366 / $533 / $1,374 / $8,033 / $12,981 / $1,758 | 8 |
| 2023 | $2,560 Prices: $652 / $1,292 / $716 / $920 / $582 / $5,606 / $413 / $1,467 / $7,451 / $1,519 / $873 / $4,197 / $559 / $2,625 / $11,759 / $329 | 16 |
| 2022 | $2,572 Prices: $646 / $1,281 / $716 / $908 / $573 / $5,647 / $409 / $1,444 / $7,568 / $1,519 / $832 / $4,296 / $555 / $2,620 / $11,817 / $322 | 16 |
| Name | フェニックス西参道タワー |
|---|---|
| Building Name | フェニックス西参道タワー |
| Address | 東京都渋谷区代々木4丁目30-5 |
| Room number | 1702 |
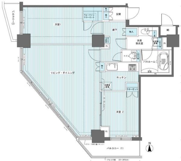
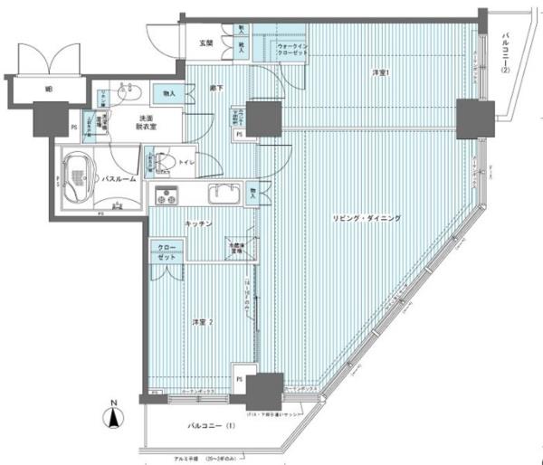
| Floor plan | 2LDK |
| Sun exposure | 南 |
| Rent | $2,137 |
|---|---|
| Management fee | $188 |
| Common service fee | - |
| Deposit | 1 |
| Key money | 1 |
| Security deposit | - |
| Premium | - |
| Premium | - |
| 鍵交換代 | - |
| 初回保証委託料 | - |
| 年間保証委託料 | - |
| 契約期間 | null |
| Fixed lease | Yes |
|---|---|
| Lease term | 2 |
| Renewable | - |
| Renewal fee | - |
| Size | 82.05 |
|---|---|
| バルコニー面積 | 7.54 |
| 専用庭面積 | - |
| Transit | 初台 (5 Min Walk) 参宮橋 (9 Min Walk) 新宿 (14 Min Walk) |
|---|
| Year built | August 2008 |
|---|---|
| Floor | 17 Floor |
| Total floors | 24 Floor |
| Total basement floors | 1 Floor |
| Structure | RC造 |
| Parking lot available | - |
|---|---|
| Parking monthly fee | - |
| Status | 空家 |
|---|---|
| 現況詳細 | 空家 |
| 引渡時期 | - |



Motoyoyogicho, Shibuya, Tokyo

Motoyoyogicho, Shibuya, Tokyo
