

Primarily residential, but allows more commercial activity including larger shops and offices (up to 3,000sqm).
Development is encouraged. Infrastructure like roads, water, and sewage is prioritized and well-maintained.
| Year | Price/Size | Total Units |
|---|---|---|
| 2025 | $3,182 Prices: $2,649 / $1,746 / $3,743 / $1,246 / $3,248 / $1,205 / $5,239 / $2,503 / $2,468 / $3,499 / $4,966 / $5,163 / $1,968 / $2,509 / $5,152 / $3,609 | 16 |
| 2023 | $2,575 Prices: $1,904 / $821 / $1,345 / $4,034 / $3,714 / $2,911 / $5,501 / $1,636 / $879 / $1,304 / $2,003 / $1,810 / $2,270 / $1,729 / $5,431 / $1,566 / $1,083 / $2,817 / $6,171 | 19 |
| 2022 | $2,573 Prices: $1,904 / $803 / $1,327 / $4,052 / $3,714 / $2,817 / $5,559 / $1,601 / $862 / $1,316 / $2,008 / $1,828 / $2,253 / $1,729 / $5,466 / $1,572 / $1,065 / $2,841 / $6,171 | 19 |
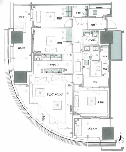
| Name | 麻布台ヒルズレジデンス B棟 |
|---|---|
| Building Name | 麻布台ヒルズレジデンス B棟 |
| Address | 東京都港区麻布台1丁目1-1 |
| Room number | 2021 |
| Floor plan | LDK |
| Sun exposure | 南 |
| Rent | $13,096 |
|---|---|
| Management fee | - |
| Common service fee | - |
| Deposit | 2 |
| Key money | 1 |
| Security deposit | - |
| Premium | - |
| Premium | - |
| 鍵交換代 | - |
| 初回保証委託料 | - |
| 年間保証委託料 | - |
| 契約期間 | 2 |
| Fixed lease | No |
|---|---|
| Lease term | null |
| Renewable | - |
| Renewal fee | 1 |
| Size | 117.12 |
|---|---|
| バルコニー面積 | - |
| 専用庭面積 | - |
| Transit | 六本木一丁目 (3 Min Walk) 神谷町 (8 Min Walk) |
|---|
| Year built | October 2025 |
|---|---|
| Floor | 20 Floor |
| Total floors | 64 Floor |
| Total basement floors | 5 Floor |
| Structure | RC造 |
| Parking lot available | - |
|---|---|
| Parking monthly fee | - |
| Status | 空家 |
|---|---|
| 現況詳細 | 空家 |
| 引渡時期 | - |
