






Konan Shinagawaintashiteic-To(Chika, Minato, Tokyo




Konan Shinagawaintashiteic-To(Chika, Minato, Tokyo
Highly convenient. High-rises, department stores, and entertainment allowed. Can be busy and noisy at night.
Development is encouraged. Infrastructure like roads, water, and sewage is prioritized and well-maintained.
| Year | Price/Size | Total Units |
|---|---|---|
| 2025 | $2,011 Prices: $3,173 / $393 / $3,202 / $1,275 | 4 |
| 2023 | $1,877 Prices: $3,045 / $6,403 / $757 / $3,021 / $774 / $792 / $511 / $1,403 / $862 / $780 / $2,299 | 11 |
| 2022 | $1,867 Prices: $3,050 / $6,462 / $722 / $3,021 / $763 / $763 / $502 / $1,356 / $844 / $757 / $2,299 | 11 |
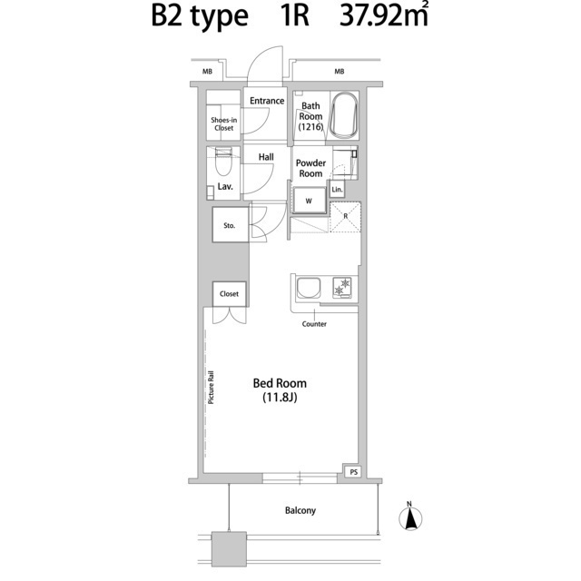
| Name | 品川ハート ビュータワー |
|---|---|
| Building Name | 品川ハート ビュータワー |
| Address | 東京都港区港南1丁目8-23 |
| Room number | 1908 |
| Floor plan | R |
| Sun exposure | 南 |
| Rent | $1,053 |
|---|---|
| Management fee | - |
| Common service fee | $63 |
| Deposit | $1,053 |
| Key money | $4,211 |
| Security deposit | - |
| Premium | - |
| Premium | - |
| 鍵交換代 | - |
| 初回保証委託料 | - |
| 年間保証委託料 | - |
| 契約期間 | 2 |
| Fixed lease | No |
|---|---|
| Lease term | null |
| Renewable | - |
| Renewal fee | $1,053 |
| Size | 37.92 |
|---|---|
| バルコニー面積 | - |
| 専用庭面積 | - |
| Transit | 品川 (7 Min Walk) 品川 (8 Min Walk) 天王洲アイル (16 Min Walk) |
|---|
| Year built | January 2019 |
|---|---|
| Floor | 19 Floor |
| Total floors | 26 Floor |
| Total basement floors | 2 Floor |
| Structure | RC造 |
| Parking lot available | - |
|---|---|
| Parking monthly fee | - |
| Status | 入居中 |
|---|---|
| 現況詳細 | 賃貸中 |
| 引渡時期 | - |





Konan Shinagawaintashiteic-To(Chika, Minato, Tokyo

Konan Shinagawaintashiteic-To(Chika, Minato, Tokyo
