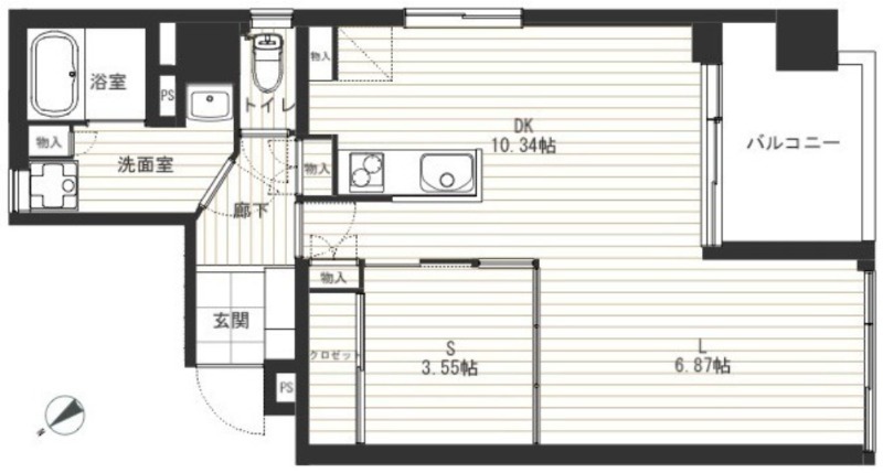
9 Properties in Tokyo Metro Ogikubo Station

Sorted By: Most Recent

Nearby Neighborhoods