

Strictly for low-rise houses. Extremely quiet. No shops or tall buildings allowed. Best for families seeking peace.
Development is encouraged. Infrastructure like roads, water, and sewage is prioritized and well-maintained.
| Year | Price/Size | Total Units |
|---|---|---|
| 2025 | $928 Prices: $438 / $710 / $1,636 | 3 |
| 2023 | $404 Prices: $360 / $355 / $291 / $340 / $421 / $358 / $263 / $263 / $498 / $332 / $332 / $1,100 / $265 / $482 | 14 |
| 2022 | $396 Prices: $353 / $348 / $285 / $333 / $413 / $353 / $260 / $258 / $487 / $325 / $324 / $1,071 / $262 / $472 | 14 |
| Name | ソルナクレイシア南阿佐ヶ谷Ⅱ |
|---|---|
| Building Name | ソルナクレイシア南阿佐ヶ谷Ⅱ |
| Address | 東京都杉並区成田東3丁目36-22 |
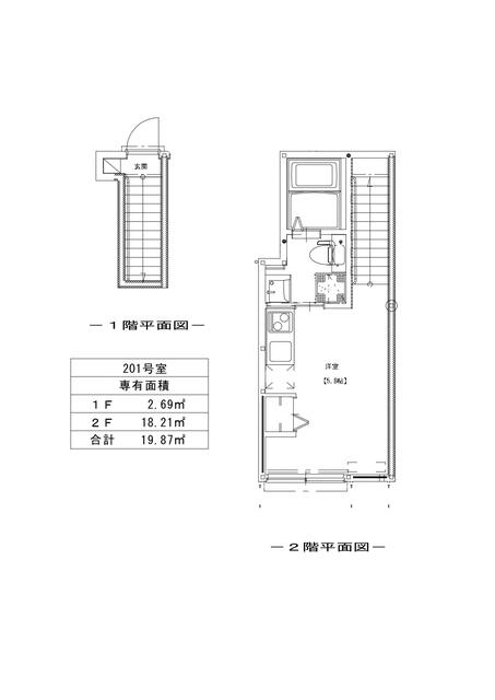
| Room number | 201 |
| Floor plan | 1R |
| Sun exposure | - |
| Rent | $533 |
|---|---|
| Management fee | $63 |
| Common service fee | - |
| Deposit | - |
| Key money | 1 |
| Security deposit | - |
| Premium | - |
| Premium | - |
| 鍵交換代 | - |
| 初回保証委託料 | - |
| 年間保証委託料 | - |
| 契約期間 | 2 |
| Fixed lease | No |
|---|---|
| Lease term | null |
| Renewable | - |
| Renewal fee | 1 |
| Size | 19.87 |
|---|---|
| バルコニー面積 | - |
| 専用庭面積 | - |
| Transit | 南阿佐ケ谷 (10 Min Walk) 新高円寺 (12 Min Walk) |
|---|
| Year built | March 2026 |
|---|---|
| Floor | 1 Floor |
| Total floors | 2 Floor |
| Total basement floors | - |
| Structure | 鉄骨造 |
| Parking lot available | - |
|---|---|
| Parking monthly fee | - |
| Status | 空家 |
|---|---|
| 現況詳細 | 空家 |
| 引渡時期 | - |



Naritanishi, Suginami, Tokyo

Naritanishi, Suginami, Tokyo

Naritanishi, Suginami, Tokyo

Naritanishi, Suginami, Tokyo
