












Motoyoyogicho, Shibuya, Tokyo











Motoyoyogicho, Shibuya, Tokyo
Similar to Cat 1, but allows larger shops and offices (up to 1,500sqm). Good balance of convenience and living.
Development is encouraged. Infrastructure like roads, water, and sewage is prioritized and well-maintained.
| Year | Price/Size | Total Units |
|---|---|---|
| 2025 | $6,276 Prices: $832 / $1,374 / $4,366 / $12,981 / $5,583 / $1,112 / $8,033 / $7,742 / $10,828 / $3,667 / $12,516 | 11 |
| 2023 | $5,474 Prices: $920 / $1,519 / $5,606 / $2,625 / $652 / $716 / $4,197 / $611 / $1,292 / $11,759 / $7,451 / $9,722 / $582 / $20,083 / $21,131 / $873 / $3,330 / $815 / $10,129 | 19 |
| 2022 | $5,516 Prices: $908 / $1,519 / $5,647 / $2,620 / $646 / $716 / $4,296 / $600 / $1,281 / $11,817 / $7,568 / $9,954 / $573 / $20,142 / $21,248 / $832 / $3,330 / $798 / $10,304 | 19 |
| Name | - |
|---|---|
| Building Name | PASEO代々木 |
| Address | 東京都渋谷区代々木2丁目42-10 |
| Room number | 0104 |
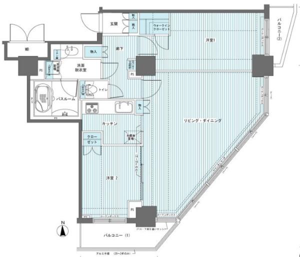
| Floor plan | 1LDK |
| Sun exposure | - |
| Rent | $1,404 |
|---|---|
| Management fee | - |
| Common service fee | - |
| Deposit | - |
| Key money | - |
| Security deposit | - |
| Premium | - |
| Premium | - |
| 鍵交換代 | - |
| 初回保証委託料 | - |
| 年間保証委託料 | - |
| 契約期間 | - |
| Fixed lease | - |
|---|---|
| Lease term | - |
| Renewable | - |
| Renewal fee | - |
| Size | 50.16 |
|---|---|
| バルコニー面積 | - |
| 専用庭面積 | - |
| Transit | 南新宿 (6 Min Walk) 新宿 (8 Min Walk) 代々木 (8 Min Walk) |
|---|
| Year built | May 2022 |
|---|---|
| Floor | 2 Floor |
| Total floors | 4 Floor |
| Total basement floors | - |
| Structure | RC |
| Parking lot available | - |
|---|---|
| Parking monthly fee | - |
| Status | 入居中 |
|---|---|
| 現況詳細 | 居住中 2026年04月11日退去予定 |
| 引渡時期 | 相談 |











Motoyoyogicho, Shibuya, Tokyo



Motoyoyogicho, Shibuya, Tokyo
