

Highly convenient. High-rises, department stores, and entertainment allowed. Can be busy and noisy at night.
Development is encouraged. Infrastructure like roads, water, and sewage is prioritized and well-maintained.
| Year | Price/Size | Total Units |
|---|---|---|
| 2025 | $1,827 Prices: $681 / $3,171 / $2,950 / $1,222 / $1,979 / $960 | 6 |
| 2023 | $1,028 Prices: $531 / $1,367 / $2,328 / $646 / $803 / $844 / $535 / $826 / $469 / $3,142 / $914 / $1,135 / $681 / $687 / $751 / $427 / $1,391 | 17 |
| 2022 | $1,018 Prices: $520 / $1,362 / $2,328 / $646 / $762 / $826 / $520 / $820 / $460 / $3,142 / $914 / $1,135 / $669 / $669 / $733 / $416 / $1,391 | 17 |
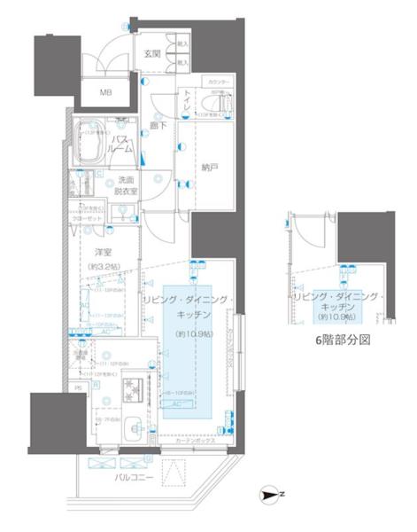
| Name | ZOOM信濃町 |
|---|---|
| Building Name | ZOOM信濃町 |
| Address | 東京都新宿区左門町21-2 |
| Room number | 801 |
| Floor plan | 1LDK |
| Sun exposure | 東 |
| Rent | $1,635 |
|---|---|
| Management fee | $125 |
| Common service fee | - |
| Deposit | 1 |
| Key money | 1 |
| Security deposit | - |
| Premium | - |
| Premium | - |
| 鍵交換代 | - |
| 初回保証委託料 | - |
| 年間保証委託料 | - |
| 契約期間 | 2 |
| Fixed lease | No |
|---|---|
| Lease term | null |
| Renewable | - |
| Renewal fee | 1 |
| Size | 43.34 |
|---|---|
| バルコニー面積 | 4.5 |
| 専用庭面積 | - |
| Transit | 四谷三丁目 (4 Min Walk) 信濃町 (7 Min Walk) 曙橋 (11 Min Walk) |
|---|
| Year built | July 2025 |
|---|---|
| Floor | 8 Floor |
| Total floors | 13 Floor |
| Total basement floors | - |
| Structure | RC造 |
| Parking lot available | - |
|---|---|
| Parking monthly fee | - |
| Status | 空家 |
|---|---|
| 現況詳細 | 空家 |
| 引渡時期 | - |
