

A general residential zone. Allows larger buildings and shops. Expect a mix of houses, apartments, and businesses.
Development is encouraged. Infrastructure like roads, water, and sewage is prioritized and well-maintained.
| Year | Price/Size | Total Units |
|---|---|---|
| 2025 | $778 Prices: $722 / $509 / $960 / $727 / $949 / $803 | 6 |
| 2023 | $739 Prices: $372 / $473 / $1,321 / $424 / $411 / $1,874 / $1,234 / $646 / $407 / $582 / $381 | 11 |
| 2022 | $733 Prices: $363 / $467 / $1,321 / $418 / $406 / $1,880 / $1,234 / $634 / $402 / $570 / $372 | 11 |
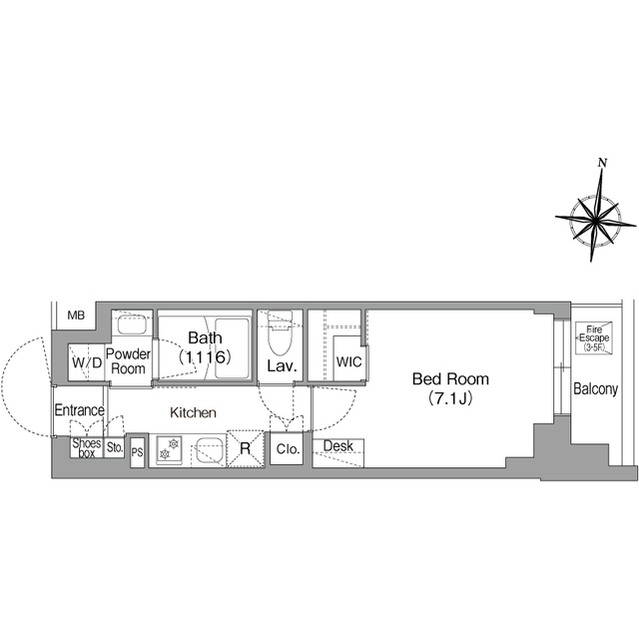
| Name | コンフォリア・リヴ大崎 |
|---|---|
| Building Name | コンフォリア・リヴ大崎 |
| Address | 東京都品川区西品川2丁目2-33 |
| Room number | 504 |
| Floor plan | K |
| Sun exposure | 東 |
| Rent | $927 |
|---|---|
| Management fee | $63 |
| Common service fee | - |
| Deposit | $927 |
| Key money | - |
| Security deposit | - |
| Premium | - |
| Premium | - |
| 鍵交換代 | - |
| 初回保証委託料 | - |
| 年間保証委託料 | - |
| 契約期間 | 2 |
| Fixed lease | No |
|---|---|
| Lease term | null |
| Renewable | - |
| Renewal fee | $927 |
| Size | 25.14 |
|---|---|
| バルコニー面積 | - |
| 専用庭面積 | - |
| Transit | 大崎 (10 Min Walk) 戸越 (13 Min Walk) |
|---|
| Year built | March 2026 |
|---|---|
| Floor | 5 Floor |
| Total floors | 6 Floor |
| Total basement floors | - |
| Structure | RC造 |
| Parking lot available | - |
|---|---|
| Parking monthly fee | - |
| Status | 未完成 |
|---|---|
| 現況詳細 | 未完成 |
| 引渡時期 | - |

Nishishinagawa, Shinagawa, Tokyo











Nishishinagawa, Shinagawa, Tokyo
