


Kikawanishi, Osaka Yodogawa, Osaka

Kikawanishi, Osaka Yodogawa, Osaka
A general residential zone. Allows larger buildings and shops. Expect a mix of houses, apartments, and businesses.
Development is encouraged. Infrastructure like roads, water, and sewage is prioritized and well-maintained.
| Year | Price/Size | Total Units |
|---|---|---|
| 2025 | $832 Prices: $186 / $623 / $1,688 | 3 |
| 2023 | $387 Prices: $134 / $507 / $124 / $1,199 / $363 / $240 / $153 / $376 | 8 |
| 2022 | $391 Prices: $134 / $512 / $123 / $1,223 / $367 / $237 / $153 / $380 | 8 |
| Name | レジデンスノーブル |
|---|---|
| Building Name | レジデンスノーブル |
| Address | 大阪府大阪市淀川区木川東3丁目3-22 |
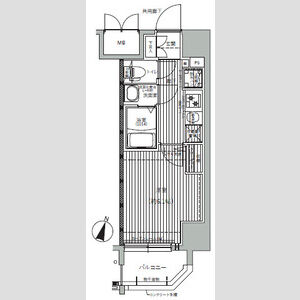
| Room number | 201 |
| Floor plan | K |
| Sun exposure | 南 |
| Rent | $251 |
|---|---|
| Management fee | $44 |
| Common service fee | - |
| Deposit | - |
| Key money | - |
| Security deposit | - |
| Premium | - |
| Premium | - |
| 鍵交換代 | - |
| 初回保証委託料 | - |
| 年間保証委託料 | - |
| 契約期間 | 3 |
| Fixed lease | Yes |
|---|---|
| Lease term | 3 |
| Renewable | Yes |
| Renewal fee | - |
| Size | 20.55 |
|---|---|
| バルコニー面積 | - |
| 専用庭面積 | - |
| Transit | 西中島南方 (8 Min Walk) 南方 (8 Min Walk) |
|---|
| Year built | March 1989 |
|---|---|
| Floor | 2 Floor |
| Total floors | 5 Floor |
| Total basement floors | - |
| Structure | RC造 |
| Parking lot available | - |
|---|---|
| Parking monthly fee | - |
| Status | 入居中 |
|---|---|
| 現況詳細 | 所有者居住中 |
| 引渡時期 | - |

Kikawanishi, Osaka Yodogawa, Osaka





Kikawanishi, Osaka Yodogawa, Osaka










Kikawanishi, Osaka Yodogawa, Osaka
