


Matsugaoka, Yokohama Kanagawa, Kanagawa

Matsugaoka, Yokohama Kanagawa, Kanagawa
Highly convenient. High-rises, department stores, and entertainment allowed. Can be busy and noisy at night.
Development is encouraged. Infrastructure like roads, water, and sewage is prioritized and well-maintained.
| Year | Price/Size | Total Units |
|---|---|---|
| 2025 | $2,836 Prices: $3,085 / $1,234 / $9,896 / $328 / $267 / $2,317 / $391 / $3,341 / $5,519 / $1,985 | 10 |
| 2023 | $1,537 Prices: $207 / $739 / $9,372 / $1,618 / $297 / $176 / $1,659 / $283 / $2,998 / $336 / $576 / $181 | 12 |
| 2022 | $1,489 Prices: $200 / $716 / $9,081 / $1,554 / $288 / $173 / $1,612 / $274 / $2,911 / $326 / $557 / $178 | 12 |
| Name | ディームス横濱青木町 |
|---|---|
| Building Name | ディームス横濱青木町 |
| Address | 神奈川県横浜市神奈川区青木町4-4 |
| Room number | 1002 |
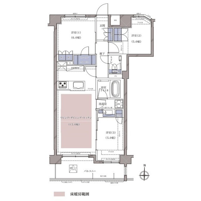
| Floor plan | LDK |
| Sun exposure | 南 |
| Rent | $1,823 |
|---|---|
| Management fee | - |
| Common service fee | $94 |
| Deposit | $1,823 |
| Key money | $1,823 |
| Security deposit | - |
| Premium | - |
| Premium | - |
| 鍵交換代 | - |
| 初回保証委託料 | - |
| 年間保証委託料 | - |
| 契約期間 | null |
| Fixed lease | Yes |
|---|---|
| Lease term | 2 |
| Renewable | - |
| Renewal fee | - |
| Size | 67.24 |
|---|---|
| バルコニー面積 | - |
| 専用庭面積 | - |
| Transit | 横浜 (9 Min Walk) 神奈川 (2 Min Walk) 東神奈川 (15 Min Walk) |
|---|
| Year built | May 2020 |
|---|---|
| Floor | 10 Floor |
| Total floors | 10 Floor |
| Total basement floors | - |
| Structure | RC造 |
| Parking lot available | - |
|---|---|
| Parking monthly fee | - |
| Status | 入居中 |
|---|---|
| 現況詳細 | 賃貸中 |
| 引渡時期 | - |
