

Highly convenient. High-rises, department stores, and entertainment allowed. Can be busy and noisy at night.
Development is encouraged. Infrastructure like roads, water, and sewage is prioritized and well-maintained.
| Year | Price/Size | Total Units |
|---|---|---|
| 2025 | $904 Prices: $410 / $1,100 / $460 / $1,647 | 4 |
| 2023 | $362 Prices: $332 / $435 / $332 / $356 / $375 / $372 / $335 | 7 |
| 2022 | $357 Prices: $327 / $430 / $327 / $349 / $371 / $367 / $329 | 7 |
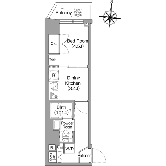
| Name | コンフォリア・リヴ木場EASTⅠ |
|---|---|
| Building Name | コンフォリア・リヴ木場EASTⅠ |
| Address | 東京都江東区東陽1丁目28-7 |
| Room number | 602 |
| Floor plan | K |
| Sun exposure | 北 |
| Rent | $871 |
|---|---|
| Management fee | $50 |
| Common service fee | - |
| Deposit | $871 |
| Key money | - |
| Security deposit | - |
| Premium | - |
| Premium | - |
| 鍵交換代 | - |
| 初回保証委託料 | - |
| 年間保証委託料 | - |
| 契約期間 | 2 |
| Fixed lease | No |
|---|---|
| Lease term | null |
| Renewable | - |
| Renewal fee | $871 |
| Size | 25.16 |
|---|---|
| バルコニー面積 | - |
| 専用庭面積 | - |
| Transit | 木場 (8 Min Walk) 東陽町 (8 Min Walk) |
|---|
| Year built | November 2025 |
|---|---|
| Floor | 6 Floor |
| Total floors | 9 Floor |
| Total basement floors | - |
| Structure | RC造 |
| Parking lot available | - |
|---|---|
| Parking monthly fee | - |
| Status | 空家 |
|---|---|
| 現況詳細 | 空家 |
| 引渡時期 | - |

Shinkiba, Koto, Tokyo

Shinkiba, Koto, Tokyo











Shinkiba, Koto, Tokyo
