

Mainly for light industries and workshops. Living is allowed, but environment might be less refined.
Development is encouraged. Infrastructure like roads, water, and sewage is prioritized and well-maintained.
| Year | Price/Size | Total Units |
|---|---|---|
| 2025 | $437 Prices: $324 / $306 / $521 / $582 / $541 / $419 / $698 / $307 / $235 | 9 |
| 2023 | $384 Prices: $362 / $260 / $240 / $321 / $1,117 / $256 / $495 / $218 / $266 / $301 | 10 |
| 2022 | $379 Prices: $357 / $257 / $237 / $317 / $1,111 / $253 / $489 / $215 / $262 / $290 | 10 |
| Name | - |
|---|---|
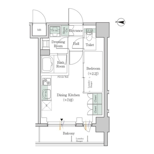
| Building Name | N-Stage亀戸Ⅱ |
| Address | 東京都江東区亀戸6丁目35-19 |
| Room number | 102 |
| Floor plan | 1K |
| Sun exposure | - |
| Rent | $645 |
|---|---|
| Management fee | - |
| Common service fee | - |
| Deposit | - |
| Key money | - |
| Security deposit | - |
| Premium | - |
| Premium | - |
| 鍵交換代 | - |
| 初回保証委託料 | - |
| 年間保証委託料 | - |
| 契約期間 | - |
| Fixed lease | - |
|---|---|
| Lease term | - |
| Renewable | - |
| Renewal fee | - |
| Size | 25.45 |
|---|---|
| バルコニー面積 | - |
| 専用庭面積 | - |
| Transit | 亀戸 (7 Min Walk) 大島 (9 Min Walk) |
|---|
| Year built | April 2017 |
|---|---|
| Floor | 1 Floor |
| Total floors | 8 Floor |
| Total basement floors | - |
| Structure | RC |
| Parking lot available | - |
|---|---|
| Parking monthly fee | - |
| Status | 入居中 |
|---|---|
| 現況詳細 | 居住中 |
| 引渡時期 | 予定 2026年05月下旬 |

Kameido, Koto, Tokyo

Kameido, Koto, Tokyo

Kameido, Koto, Tokyo











Kameido, Koto, Tokyo

Kameido, Koto, Tokyo







Kameido, Koto, Tokyo

Kameido, Koto, Tokyo











Kameido, Koto, Tokyo

Kameido, Koto, Tokyo

Kameido, Koto, Tokyo

Kameido, Koto, Tokyo










Kameido, Koto, Tokyo

Kameido, Koto, Tokyo

Kameido, Koto, Tokyo

Kameido, Koto, Tokyo
