

Provides daily necessities to the local area. Expect small supermarkets and restaurants nearby.
Development is encouraged. Infrastructure like roads, water, and sewage is prioritized and well-maintained.
| Year | Price/Size | Total Units |
|---|---|---|
| 2025 | $421 Prices: $329 / $334 / $190 / $375 / $377 / $265 / $469 / $773 / $597 / $122 / $797 | 11 |
| 2023 | $243 Prices: $141 / $117 / $197 / $237 / $229 / $255 / $331 / $273 / $255 / $197 / $128 / $312 / $177 / $172 / $277 / $633 / $203 | 17 |
| 2022 | $238 Prices: $139 / $117 / $192 / $230 / $224 / $249 / $323 / $267 / $251 / $193 / $128 / $305 / $173 / $168 / $277 / $621 / $197 | 17 |
| Name | ブラックキューブ横浜橋 |
|---|---|
| Building Name | ブラックキューブ横浜橋 |
| Address | 神奈川県横浜市南区中村町2丁目123-3 |
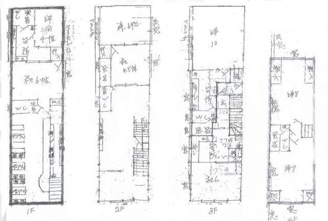
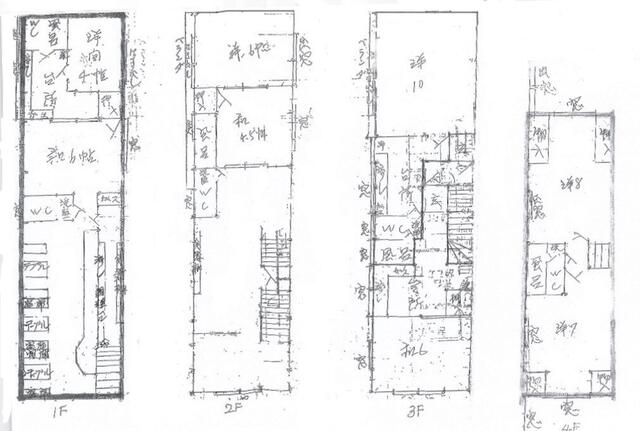
| Floor plan | 1R |
| Price | $447,626 |
|---|
| Land size | 72.59 |
|---|---|
| Size | 117.63 |
| 私道負担 | - |
| セットバック | - |
| Transit | 阪東橋 (11 Min Walk) 石川町 (15 Min Walk) 黄金町 (17 Min Walk) |
|---|
| Year built | May 2019 |
|---|---|
| Total floors | 3 Floor |
| Total basement floors | - |
| Structure | 木造 |
| Units for sale | - |
| Terrain | 平坦 |
|---|
| Parking lot available | - |
|---|---|
| Parking monthly fee | - |
| District | 近隣商業地域 |
|---|---|
| City plan zone | 市街化区域 |
| Building coverage ratio | 80 % |
| Floor area ratio | 300 % |
| For investment | Yes |
|---|---|
| Gross yield | - |
| Status | 入居中 |
|---|---|
| 現況詳細 | 賃貸中 |
| 引渡時期 | - |
