Photo background
1 / 9

Brand New 1-Bedroom House in Sakae

Sakae, Niiza, Saitama埼玉県新座市栄5丁目4900-39(地番)

Price

$173,466

Layout & Size

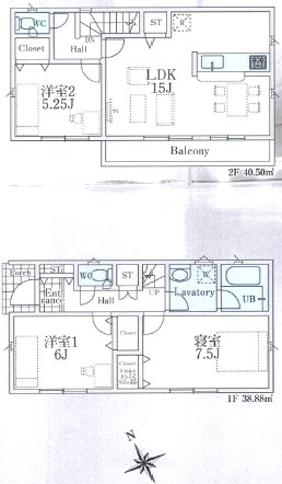
1 rooms / LDK / 828.3 ft²
Listed
11/21/2025
Property Type
House
Year Built
2025
Price/Size
$209.4
Last Updated: January 19, 2026

Features & Amenities

System Kitchen
Bathroom Dryer
Roof Balcony

Other Features

City Gas
Electricity
Water Supply
Sewerage
Water Purifier
Hot Water Supply
Heated Toilet Seat With Bidet
Shampoo Dresser
24-Hour Ventilation System
Storage Space
Underfloor Storage
Intercom With Monitor
Fire Alarm Installed

Transit

Nearby Stations

Nearby Schools

0.5 km
0.7 km

Area Information

Schools (Elementary School)
池田小学校
Schools (Junior High School)
第三中学校
Usage Zone
第1種住居地域
City Planning Area
Area Classification
市街化区域
Location Optimization Plan
N/A
City Planning Road
N/A

Usage Zone

Category 1 Residential

A general residential zone. Allows larger buildings and shops. Expect a mix of houses, apartments, and businesses.

Area Classification

Urbanization Promotion Area

Development is encouraged. Infrastructure like roads, water, and sewage is prioritized and well-maintained.

Land Price History

YearPrice/SizeTotal Units
2025$126
Prices:
$117 / $155 / $150 / $81
4
2023$122
Prices:
$108 / $143 / $76 / $159
4
2022$121
Prices:
$107 / $143 / $75 / $158
4

property.details

Basic Info

Name埼玉県新座市栄5丁目 新築戸建
Building Name-
Address埼玉県新座市栄5丁目4900-39(地番)
Floor planLDK

Price

Price$173,466

Area

Land size71.87
Size76.95
私道負担89
セットバック-

Access

Transit
大泉学園 (38 Min Walk)

Building

Year builtDecember 2025
Total floors2 Floor
Total basement floors-
Structure木造
Units for sale-

Land

Terrain-

Parking

Parking lot available-
Parking monthly fee-

City Plan

District第1種住居地域
City plan zone市街化区域
Building coverage ratio60 %
Floor area ratio160 %

Investment

For investmentNo
Gross yield-

Handover

Status空家
現況詳細空家
引渡時期-
Have Questions?
Request More Info?
Contact Agent
Toyo Tanuma
Toyo Tanuma
Open Room Inc.
Contact Agent