

Strictly for low-rise houses. Extremely quiet. No shops or tall buildings allowed. Best for families seeking peace.
Development is encouraged. Infrastructure like roads, water, and sewage is prioritized and well-maintained.
| Year | Price/Size | Total Units |
|---|---|---|
| 2025 | $86 Prices: $81 / $92 | 2 |
| 2023 | $96 Prices: $87 / $113 / $99 / $103 / $76 | 5 |
| 2022 | $94 Prices: $86 / $112 / $98 / $101 / $76 | 5 |
| Name | 埼玉県新座市畑中2丁目 新築戸建 |
|---|---|
| Building Name | - |
| Address | 埼玉県新座市畑中2丁目5916-1、5917-3の各一部(地番 |
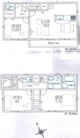
| Floor plan | LDK |
| Price | $187,142 |
|---|
| Land size | 93.61 |
|---|---|
| Size | 79.38 |
| 私道負担 | - |
| セットバック | - |
| Transit | 新座 (35 Min Walk) 朝霞台 (38 Min Walk) |
|---|
| Year built | November 2025 |
|---|---|
| Total floors | 2 Floor |
| Total basement floors | - |
| Structure | 木造 |
| Units for sale | - |
| Terrain | 平坦 |
|---|
| Parking lot available | - |
|---|---|
| Parking monthly fee | - |
| District | 第1種住居地域 |
|---|---|
| City plan zone | 市街化区域 |
| Building coverage ratio | 60 % |
| Floor area ratio | 200 % |
| For investment | No |
|---|---|
| Gross yield | - |
| Status | 空家 |
|---|---|
| 現況詳細 | 空家 |
| 引渡時期 | - |
