Open Room
en.openrm.jp
Buy
Rent
USD / ft²
Home
/
Buy
/
Saitama
/
Iruma
/
Toyoka, Iruma, Saitama
Back To Search Results
1 / 10
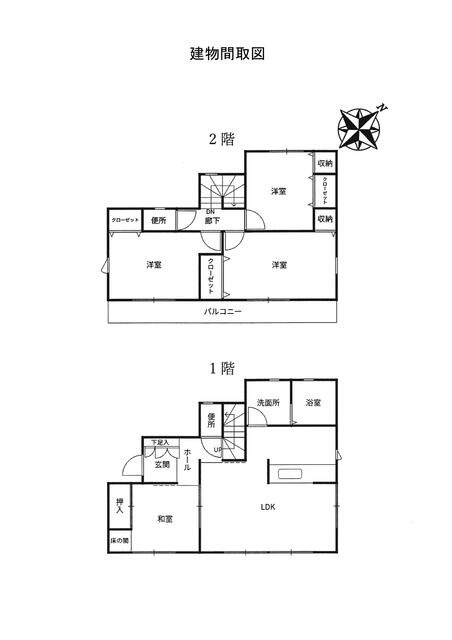
Brand New LDK House Near Station in Toyoka
Toyoka, Iruma, Saitama
•
埼玉県入間市東藤沢5丁目全4棟1期2号棟
Price
$199,876
Layout & Size
3 rooms / LDK /
1,097.4 ft²
Listed
11/28/2025
Property Type
sale
Year Built
2025
Price/Size
$182.1
Last Updated: December 15, 2025
Features & Amenities
Dishwasher/Dryer
Other Features
City Gas
Electricity
Water Supply
Sewerage
Water Purifier
Hot Water Supply
Reheating Function
Heated Toilet Seat With Bidet
Shampoo Dresser
Wood Flooring
Double-Glazed Windows
Underfloor Storage
Intercom With Monitor
Fire Alarm Installed
Bels/Energy Efficiency Certified
Transit
Nearby Stations
Irumashi Station
Seibu Ikebukuro Line
10 min walk
Other Available Units In This Building
Delivery Box
Bathroom Dryer
System Kitchen
$128,390
Brand New LDK House in Araku
Araku, Iruma, Saitama
1,978.7 ft²
/
4r
2025
House
仏子 22 min walk
Neighborhood Map
Show Stations
Show Bus Stops
Show Schools
Hazard Maps
埼玉県入間市豊岡1-15-1
埼玉県入間市向陽台1-1-14
埼玉県入間市豊岡1-8-24
埼玉県入間市向陽台1-1-1
埼玉県入間市向陽台2-1-20
埼玉県狭山市稲荷山2-6-1
埼玉県入間市向陽台2-1009-3
埼玉県入間市久保稲荷1-25-3
埼玉県狭山市稲荷山2-15-1
埼玉県入間市向陽台2-1-22
埼玉県入間市扇台4-5-19
埼玉県入間市高倉4-14-7
Irumashi Station
$199,876
Neighborhood
View detailed livability data
Nearby Schools
埼玉県立豊岡高等学校
High School
0.3 km
入間市立豊岡小学校
Elementary School
0.3 km
おおぎ第二こども園
Kindergarden
0.5 km
Area Information
Elementary School Zone
豊岡小学校
Junior High School Zone
豊岡中学校
Urban Plan Zone
入間都市計画区域
Land Price History
Year
Average Price / m²
Data Points
2025
$89
Prices:
$129 / $75 / $73 / $78
4
2023
$69
Prices:
$72 / $81 / $73 / $66 / $64 / $59
6
2022
$69
Prices:
$71 / $82 / $72 / $66 / $64 / $59
6
Show All
Nearby Properties You May Like
System Kitchen
Propane Gas
Electricity
$179,875
Modern LDK House in Toyoka
Toyoka, Iruma, Saitama
1,196 ft²
/
4r
2016
House
Irumashi Station 15 min walk
Have Questions?
Request More Info?
Contact Agent
Toyo Tanuma
Open Room Inc.