

Highly convenient. High-rises, department stores, and entertainment allowed. Can be busy and noisy at night.
Development is encouraged. Infrastructure like roads, water, and sewage is prioritized and well-maintained.
| Year | Price/Size | Total Units |
|---|---|---|
| 2025 | $928 Prices: $370 / $363 / $2,267 / $360 / $1,281 | 5 |
| 2023 | $434 Prices: $282 / $169 / $231 / $597 / $307 / $261 / $130 / $410 / $1,739 / $295 / $350 | 11 |
| 2022 | $449 Prices: $285 / $170 / $230 / $655 / $311 / $261 / $130 / $417 / $1,843 / $293 / $347 | 11 |
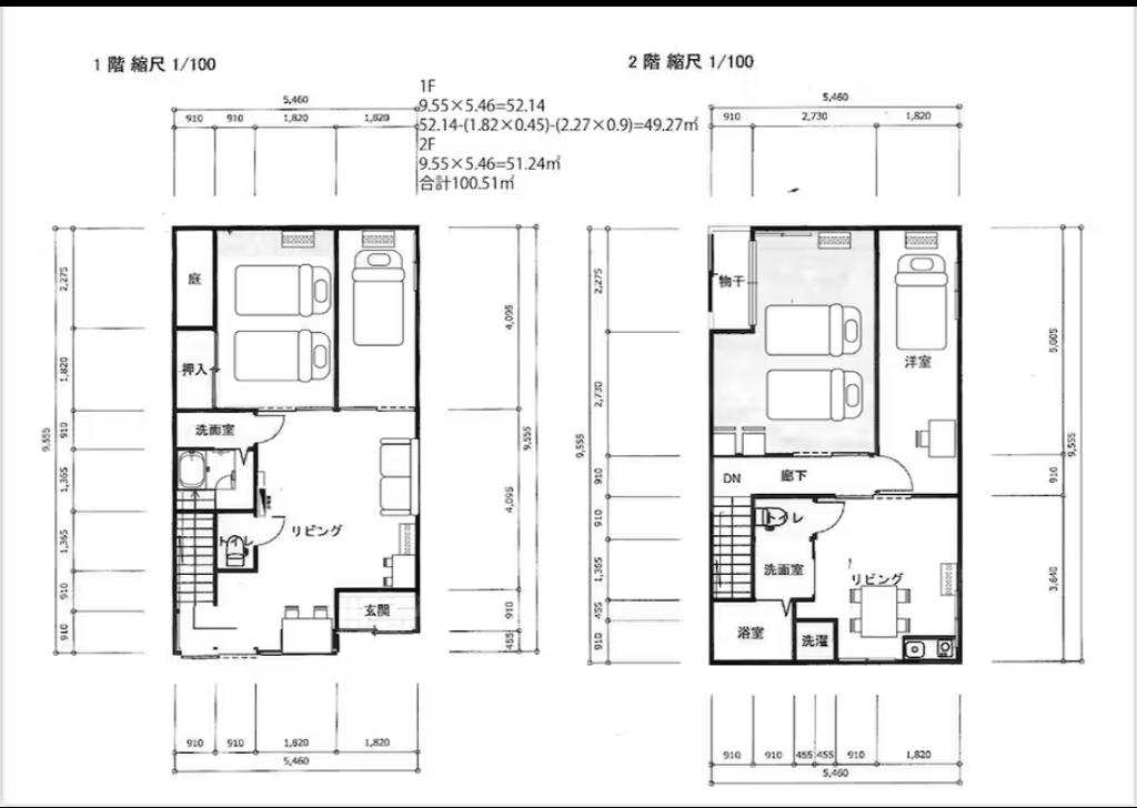
| Name | 大阪府大阪市浪速区恵美須東1丁目 ホテル |
|---|---|
| Building Name | - |
| Address | 大阪府大阪市浪速区恵美須東1丁目5-17 |
| Floor plan | LDK |
| Price | $623,978 |
|---|
| Land size | 56.16 |
|---|---|
| Size | 103.9 |
| 私道負担 | - |
| セットバック | - |
| Transit | 恵美須町 (3 Min Walk) |
|---|
| Year built | January 1970 |
|---|---|
| Total floors | 2 Floor |
| Total basement floors | - |
| Structure | 木造 |
| Units for sale | - |
| Terrain | - |
|---|
| Parking lot available | - |
|---|---|
| Parking monthly fee | - |
| District | 商業地域 |
|---|---|
| City plan zone | 市街化区域 |
| Building coverage ratio | 80 % |
| Floor area ratio | 400 % |
| For investment | No |
|---|---|
| Gross yield | - |
| Status | - |
|---|---|
| 現況詳細 | - |
| 引渡時期 | - |
