

Strictly for low-rise houses. Extremely quiet. No shops or tall buildings allowed. Best for families seeking peace.
| Year | Price/Size | Total Units |
|---|---|---|
| 2025 | $103 Prices: $104 / $84 / $106 / $119 | 4 |
| 2023 | $84 Prices: $92 / $91 / $87 / $76 / $71 / $85 | 6 |
| 2022 | $83 Prices: $91 / $91 / $87 / $76 / $72 / $84 | 6 |
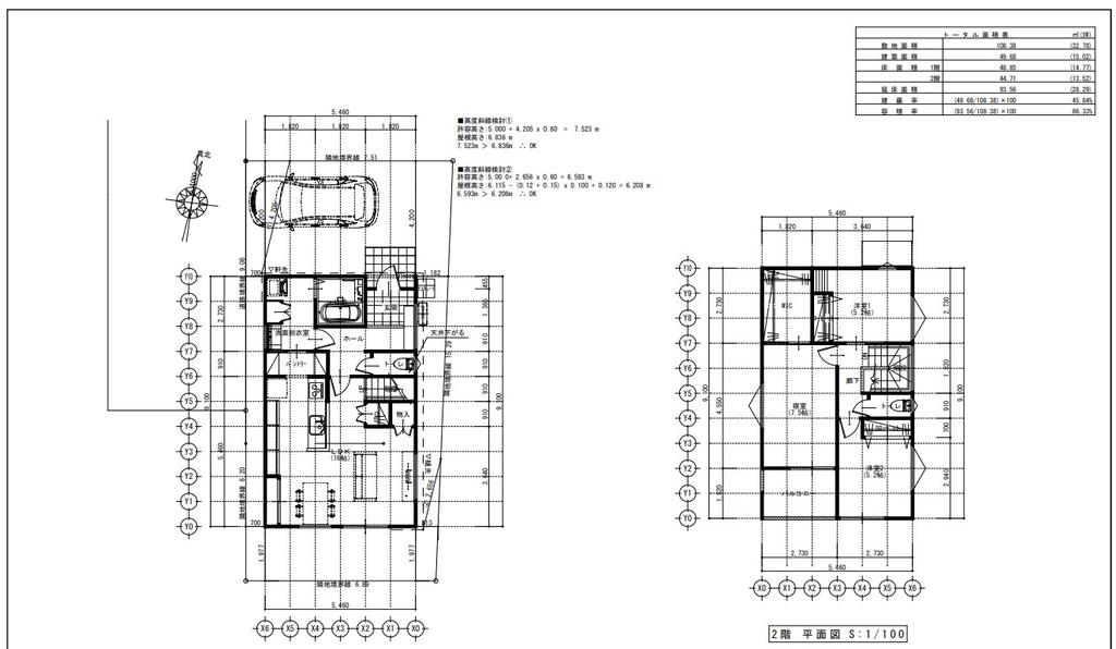
| Name | 大阪府枚方市山之上北町 売地 |
|---|---|
| Building Name | - |
| Address | 大阪府枚方市山之上北町 |
| Price | $161,480 |
|---|
| Land size | 110.04 |
|---|---|
| 私道負担 | - |
| セットバック | 無 |
| Transit | 星ケ丘 (12 Min Walk) 枚方市 (18 Min Walk) |
|---|
| Terrain | 平坦 |
|---|
| District | 第1種低層住居専用地域 |
|---|---|
| City plan zone | 市街化区域 |
| Building coverage ratio | 50 % |
| Floor area ratio | 100 % |
| For investment | No |
|---|---|
| Gross yield | - |
| Status | 更地 |
|---|---|
| 現況詳細 | 更地 |
| 引渡時期 | - |
