


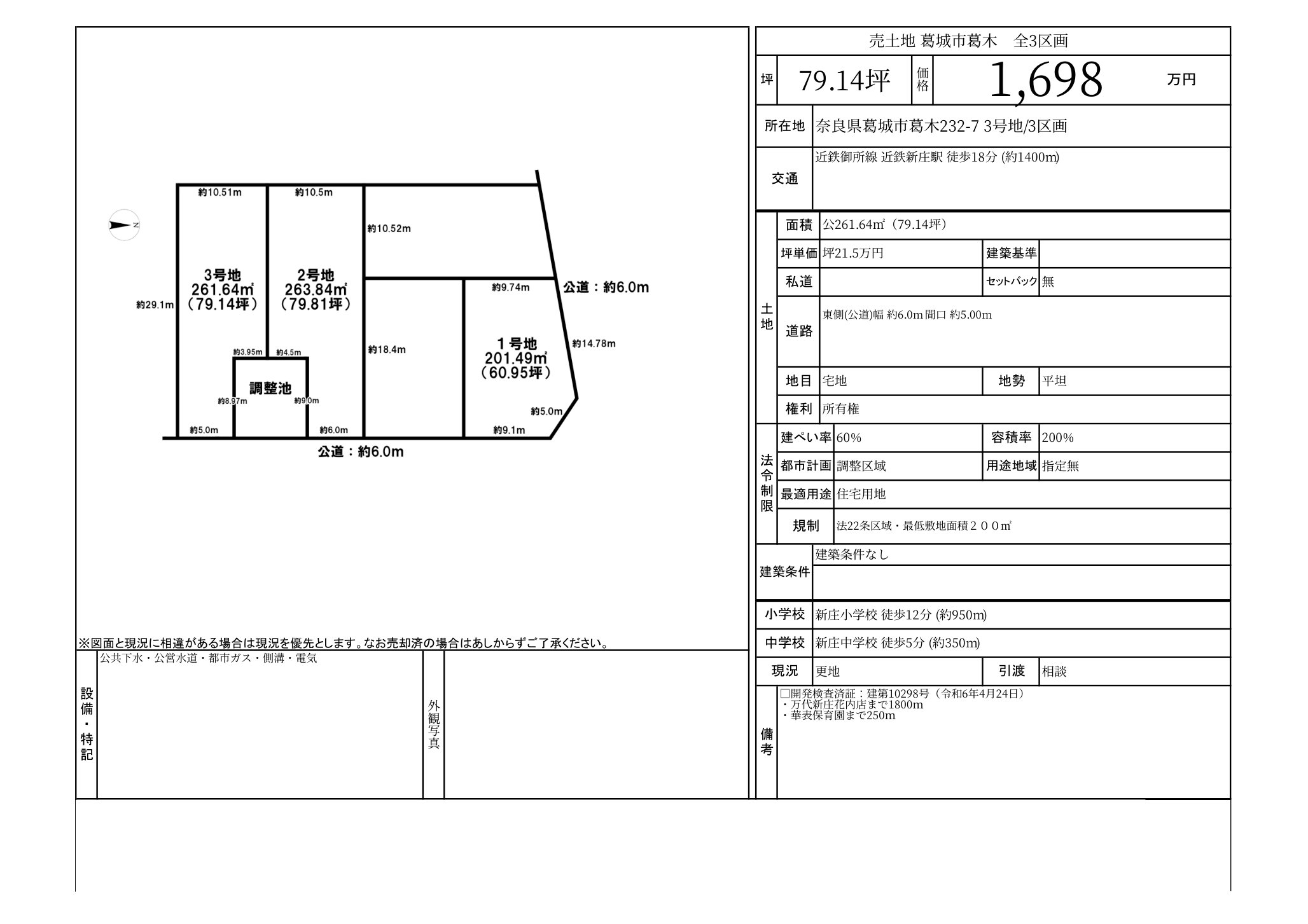
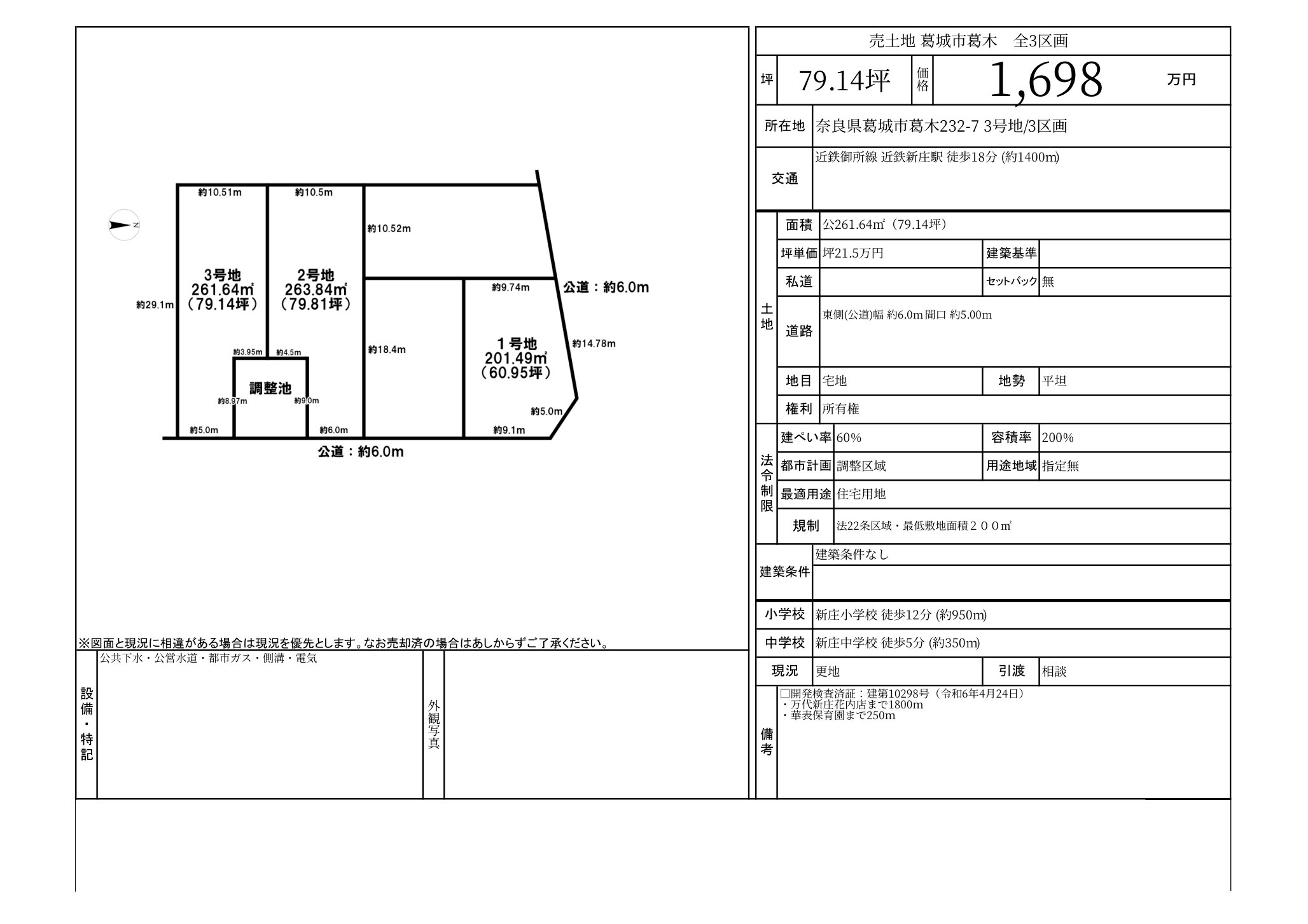
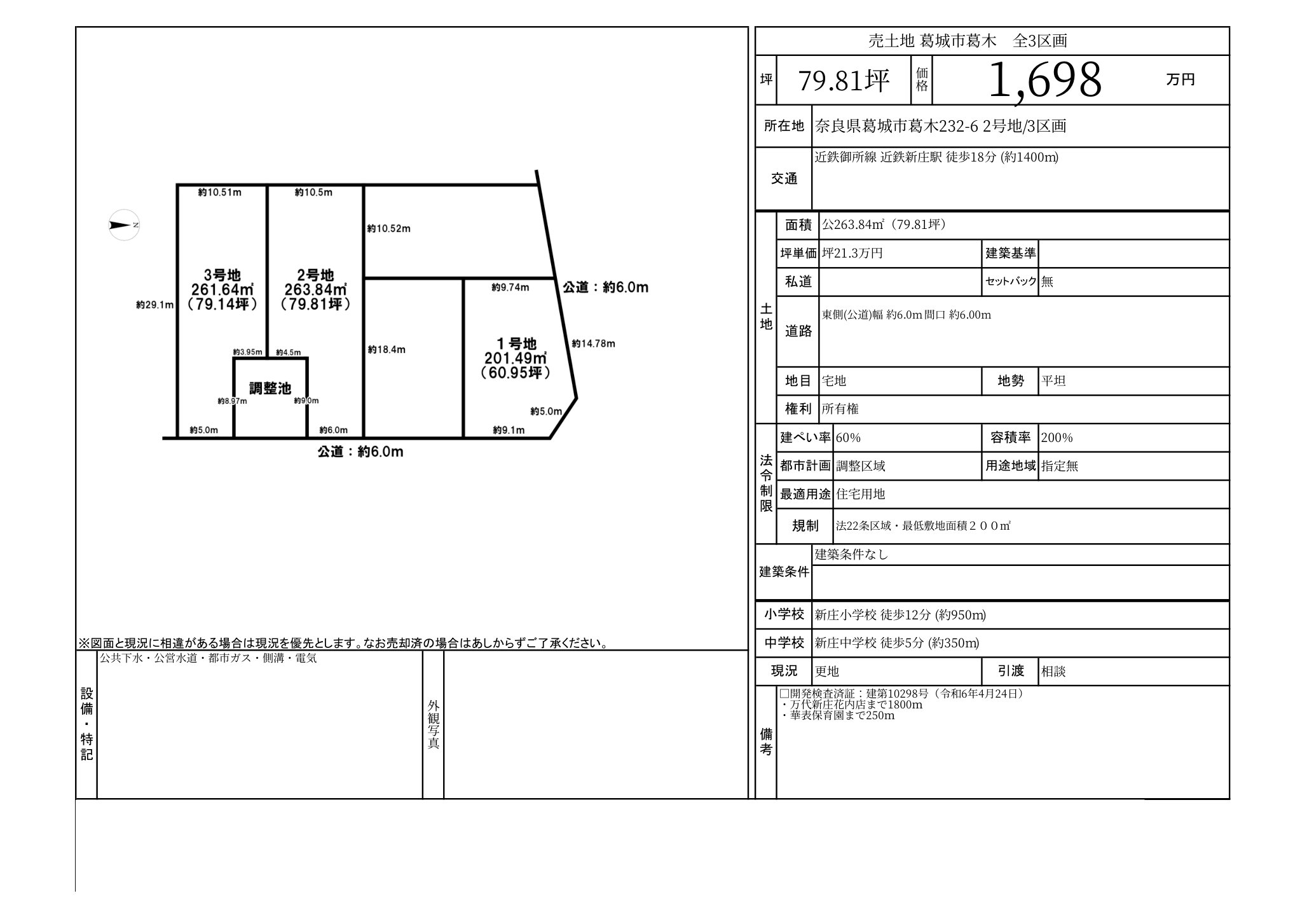
Katsuragi, Katsuragi, Nara

Katsuragi, Katsuragi, Nara



Katsuragi, Katsuragi, Nara
Similar to Cat 1, but allows larger shops and offices (up to 1,500sqm). Good balance of convenience and living.
Development is encouraged. Infrastructure like roads, water, and sewage is prioritized and well-maintained.
The city officially wants people to live here long-term. High likelihood of stable property values and nearby services.
| Year | Price/Size | Total Units |
|---|---|---|
| 2025 | $34 Prices: $26 / $41 | 2 |
| 2023 | $19 Prices: $29 / $11 / $16 | 3 |
| 2022 | $19 Prices: $29 / $11 / $16 | 3 |
| Name | 奈良県葛城市葛木 売地 |
|---|---|
| Building Name | - |
| Address | 奈良県葛城市葛木 |
| Price | $98,589 |
|---|
| Land size | 233.53 |
|---|---|
| 私道負担 | - |
| セットバック | - |
| Transit | 近鉄新庄 (14 Min Walk) |
|---|
| Terrain | 平坦 |
|---|
| District | 第2種中高層住居専用地域 |
|---|---|
| City plan zone | 市街化区域 |
| Building coverage ratio | 60 % |
| Floor area ratio | 200 % |
| For investment | No |
|---|---|
| Gross yield | - |
| Status | 更地 |
|---|---|
| 現況詳細 | 更地 |
| 引渡時期 | - |
