Open Room
en.openrm.jp
Buy
Rent
USD / ft²
Home
Buy
Kochi
Kochi
1-22, Nagahamamakiedai, Kochi, Kochi
Back To Search Results
1 / 10
LDK House Near Station
1-22, Nagahamamakiedai, Kochi, Kochi
•
高知県高知市長浜蒔絵台1丁目22-1
Price
$216,225
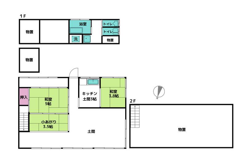
Layout & Size
4 rooms / LDK /
1,858.1 ft²
Listed
8/17/2025
Property Type
sale
Year Built
2003
Price/Size
$116.4
Last Updated: November 15, 2025
Features & Amenities
System Kitchen
Dishwasher/Dryer
Parking
Other Features
Electricity
Water Supply
Sewerage
Gutter
Counter Kitchen
Separate Bath And Toilet
Wash Basin
Washstand
Indoor Washing Machine Space
Wood Flooring
Garden
Transit
Nearby Stations
Other Available Units In This Building
Pets Allowed
Propane Gas
Pit Toilet
$5,242
Vintage K House Near Station in Ukitsu3-bancho
Ukitsu3-Bancho, Muroto, Kochi
2,698.5 ft²
/
3r
1970
House
奈半利 min walk
Neighborhood Map
Show Stations
Show Bus Stops
Show Schools
Hazard Maps
$216,225
Neighborhood
View detailed livability data
Nearby Schools
Area Information
Elementary School Zone
N/A
Junior High School Zone
N/A
Urban Plan Zone
N/A
Land Price History
Year
Average Price / m²
Data Points
Have Questions?
Request More Info?
Contact Agent
Toyo Tanuma
Open Room Inc.