Open Room
en.openrm.jp
Buy
Rent
USD / ft²
Home
Buy
Kochi
Kochi
Ikkunishimachi, Kochi, Kochi
Back To Search Results
1 / 10
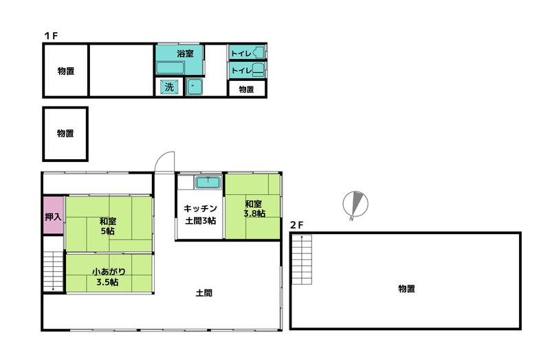
Well-Kept LDK House Near Station in Ikkunishimachi
Ikkunishimachi, Kochi, Kochi
•
高知県高知市長浜131-8
Price
$36,693
Layout & Size
4 rooms / LDK /
750.8 ft²
Listed
8/17/2025
Property Type
sale
Year Built
1969
Price/Size
$48.9
Last Updated: November 15, 2025
Features & Amenities
Other Features
Electricity
Water Supply
Gutter
Separate Bath And Toilet
Indoor Washing Machine Space
Transit
Nearby Stations
Other Available Units In This Building
Pets Allowed
Propane Gas
Pit Toilet
$5,242
Vintage K House Near Station in Ukitsu3-bancho
Ukitsu3-Bancho, Muroto, Kochi
2,698.5 ft²
/
3r
1970
House
奈半利 min walk
Neighborhood Map
Show Stations
Show Bus Stops
Show Schools
Hazard Maps
高知県高知市長浜4811
高知県高知市長浜5235
$36,693
Neighborhood
View detailed livability data
Nearby Schools
高知市立長浜小学校
Elementary School
0.8 km
高知市立南海中学校
Junior High School
1.1 km
Area Information
Elementary School Zone
長浜小学校
Junior High School Zone
南海中学校
Urban Plan Zone
N/A
Land Price History
Year
Average Price / m²
Data Points
2025
$50
Prices:
$50
1
2023
$12
Prices:
$15 / $9
2
2022
$12
Prices:
$15 / $9
2
Show All
Nearby Properties You May Like
Separate Bath And Toilet
$38,003
DK House Near Station in Ikkunishimachi
Ikkunishimachi, Kochi, Kochi
2,169.4 ft²
/
3r
1999
House
Electricity
Gutter
$7,863
Charming DK House Near Station in Ikkunishimachi
Ikkunishimachi, Kochi, Kochi
617.2 ft²
/
3r
1963
House
Have Questions?
Request More Info?
Contact Agent
Toyo Tanuma
Open Room Inc.