Photo background
1 / 10

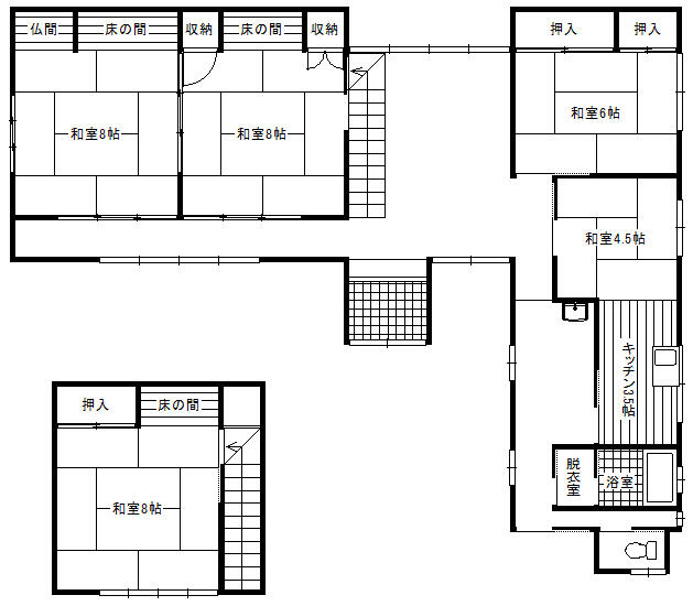
Charming K House Near Station

Kanao, Osato Gun Yorii, Saitama埼玉県大里郡寄居町大字金尾269-1

Price

$22,768

Layout & Size

5 rooms / K / 1,333.9 ft²
Listed
11/17/2025
Property Type
sale
Year Built
1987
Price/Size
$17.1
Last Updated: November 17, 2025

Features & Amenities

Other Features

Propane Gas
Pit Toilet
Garden

Transit

Nearby Stations

Neighborhood Map

$22,768

Nearby Schools

Area Information

Elementary School Zone
N/A
Junior High School Zone
N/A
Urban Plan Zone
N/A

Land Price History

YearAverage Price / m²Data Points
Have Questions?
Request More Info?
Contact Agent
Toyo Tanuma
Toyo Tanuma
Open Room Inc.